Konzepterstellung für ein ausgeschriebenes Verhandlungsverfahren
Projektdaten
Konzepterstellung für den Neubau eines dauerhaften Ausweichquartiers (Drehscheibe) als Schulgebäude für die Berliner Polizei
4.062 m² Bruttogrundfläche
Zeitraum: 2020
Auftraggeber
BIM Berliner Immobilienmanagement GmbH
Leistungen
Konzepterstellung im Rahmen eines ausgeschriebenen Verhandlungsverfahrens
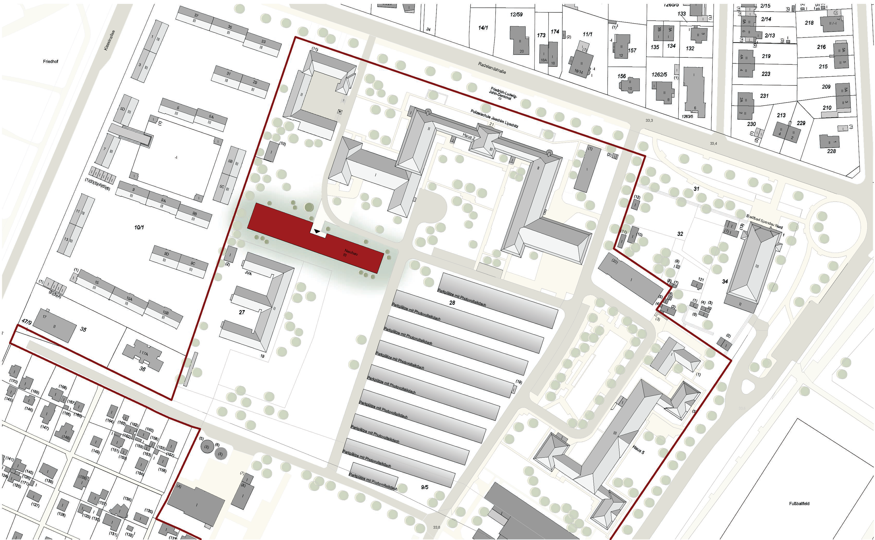
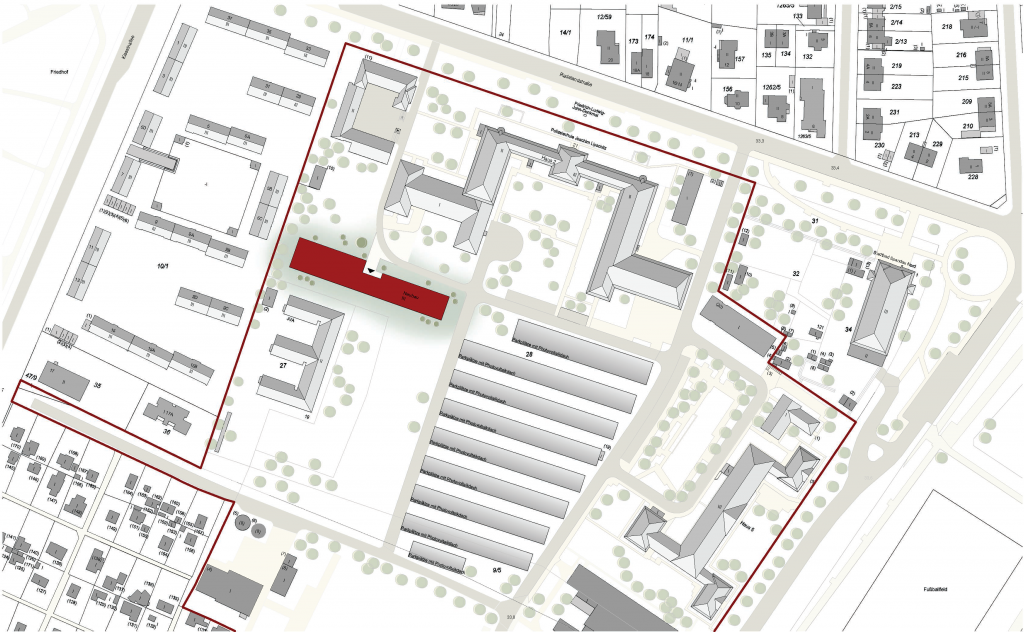
Die vorgesehene Fläche mit einer maximalen Tiefe von ca. 28 Metern zwischen der Fahrbahn und der Grenze der benachbarten JVA bietet Platz für ein zweihüftiges Gebäude. Diese Position ermöglicht kurze Wege von und zu den Bestandsgebäuden und zu den PKW-Parkplätzen.
Der Ersatzneubau ist dreigeschossig ohne Keller geplant. Der Zugang des Gebäudes erfolgt über die Nordseite. Die Fassade der Eingangszone ist eingerückt und bildet äußerlich die Fuge zwischen den Gebäudebereichen. Eine gläserne Fassade öffnet das Gebäude zu einer Hofzone, die sich auch am gegenüberliegenden Bestandsgebäude wiederfindet. Die Eingangszone mit dem zentralen Treppenhaus und einem Aufzug gliedert das Gebäude in zwei Bereiche: Westlich schließt der Gebäudeteil der Seminarräume an und östlich der Bereich der Büroräume. Der Seminarbereich hat eine Gebäudetiefe von 17,50 Meter und der Bürobereich eine Gebäudetiefe von 13,80 Meter. Die Erschließung erfolgt über einen zentralen Flur, an dessen Ende jeweils die notwendigen Treppenhäuser und WC-Anlagen liegen. Pro Geschoss ist ein Besprechungsraum vorgesehen und zentral neben dem Haupttreppenhaus ein Aufenthaltsraum mit Teeküche. Das Gebäude wird behindertengerecht erschlossen und alle Geschosse werden über einen Aufzug erreicht.
Der Neubau ist als Modulbau geplant. Hierfür werden Module in Holzbau als komplette 3D-Raumzellen industriell vorgefertigt, um sie dann auf der Baustelle zu montieren. Dem System liegt ein Rastermaß von 2,80m zugrunde. Die vorgefertigten Arbeiten umfassen den Holzbau, die Fassade, Einbau aller Fenster und Türen, Teile der Maler- und Bodenbelagsarbeiten, sowie der Leitungsführung und Sanitärinstallation. Die Flachdachabdichtung und die Fertigstellung des Innenausbaus werden nach der Montage der Module auf der Baustelle ausgeführt.









