Sanierung | Gewerbebau

Münzgasse Leipzig

down arrow

Titelbild © Paul Trainer

Revitalisierung Bürogebäude und Implementierung eines neuen Konferenz-Centers

Projektdaten
Umbau und technische Erneuerung von Büroflächen
7.800 m² Bruttogrundfläche
Zeitraum: 2018–2020

Auftraggeber
Credit Suisse AG, Zürich

Leistungen
HOAI Leistungsphasen 1–5, analog Phasen SIA 31–51
Gestalterische Leitung

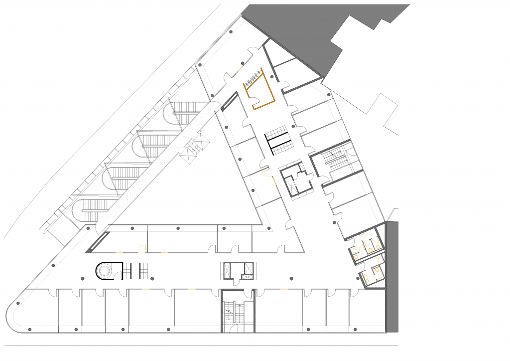
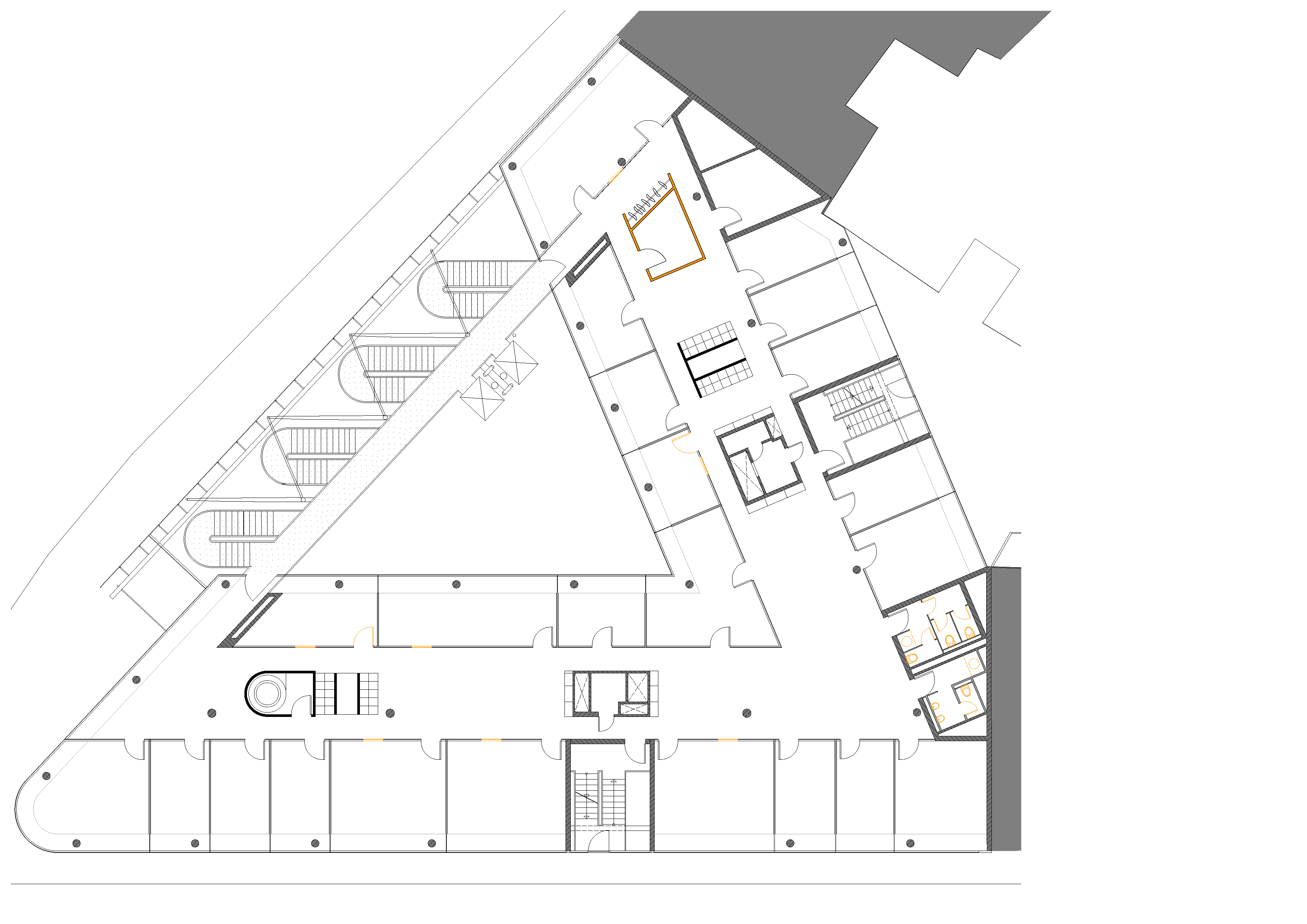
Das Büro- und Geschäftsgebäude wurde im Jahr 1998 errichtet und besteht aus einer Gewerbezone im Erdgeschoss und 1. Obergeschoss sowie einer Bürozone im 2.–5.Obergeschoss. Das Gebäude ist komplett unterkellert und verfügt über eine Tiefgarage mit PKW- und Fahrradstellplätzen. Die haustechnischen Anlagen sind im Untergeschoss und auf dem Dach untergebracht. Im Zuge von Modernisierungsmassnahmen werden die Büroetagen 2 bis 5 entsprechend der neuesten technischen Standards umgebaut. Die Fläche des ehemaligen Restaurants im Erdgeschoss und 1. Obergeschoss wird zu einem Konferenzzentrum mit sieben Konferenzräumen und entsprechenden Nebenräumen umgebaut. In der Tiefgarage werden neue Ladestationen für Elektrofahrzeuge sowie Ladepunkte für Elektrofahrräder mit abschliessbaren Batteriefächern errichtet. Die Arbeiten finden bei laufendem Büro- bzw. Geschäftsbetrieb statt.

Sie haben Fragen zum Projekt? Rufen Sie uns an, oder schicken Sie uns eine Nachricht.

Ähnliche Projekte

Gutleutstraße Frankfurt/Main

Villa in Berlin Schmargendorf

Bürofläche Morgan Sindall Basel

scroll-top-arrow