Innenarchitektur und Ausbau Büroflächen
Projektdaten
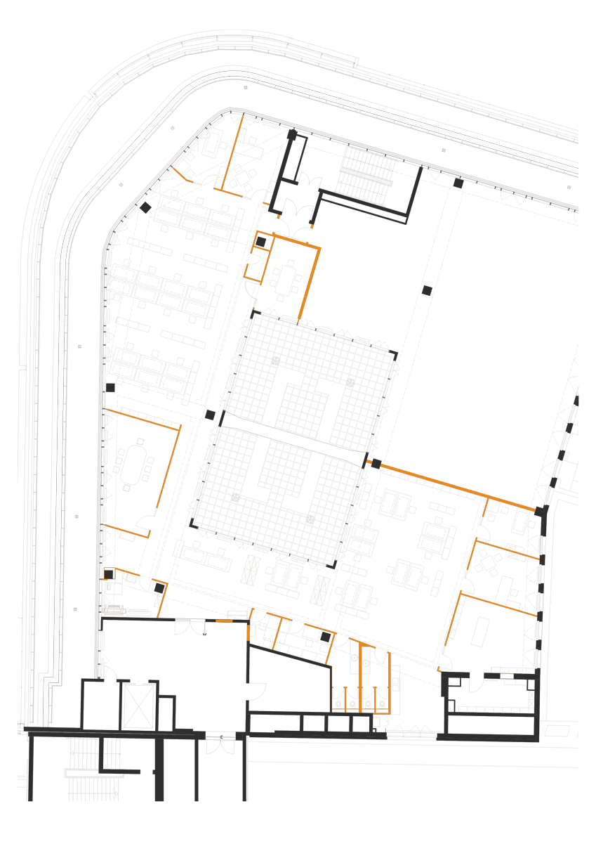
Individueller Büroausbau für Bräunlin + Kolb Standort Berlin
606 m² Nutzfläche
Zeitraum: 2012–2013
Auftraggeber
Credit Suisse AG, Zürich
Leistungen
HOAI Leistungsphasen 1–8, analog Phasen SIA 31–53
Das Kant-Center ist ein Gebäudekomplex, der 2004 durch Umbau und Sanierung zweier bestehender Gebäude (Baujahr 1964) an der Kantstraße, Ecke Wilmersdorfer Straße entstand. Mit einer Nutzungsmischung von unterschiedlichen Geschäften und Dienstleistern setzt es einen starken Akzent für die Wilmersdorfer Straße. Das Gebäude umfasst sechs oberirdische Geschosse. Ein Innenhof sorgt dafür, dass trotz der Gebäudetiefe viel Tageslicht einfällt. Ein großer Teil des 6. OGs wurde ausgebaut zu einem hellen, modernen Großraumbüro mit offener Struktur. Der Eingang wurde neu konzipiert und besucherfreundlich verbreitert, sowie mit einer Glastür versehen. Zwei separate Besprechungsräume verfügen über große Fenster zur Belichtung und Belüftung und einen Zugang zur Dachterrasse. Ebenso sind fünf Einzelbüroräume vom Grossraum abgetrennt. Ein wichtiger Treffpunkt zur Kommunikation ist die offene Teeküche.










